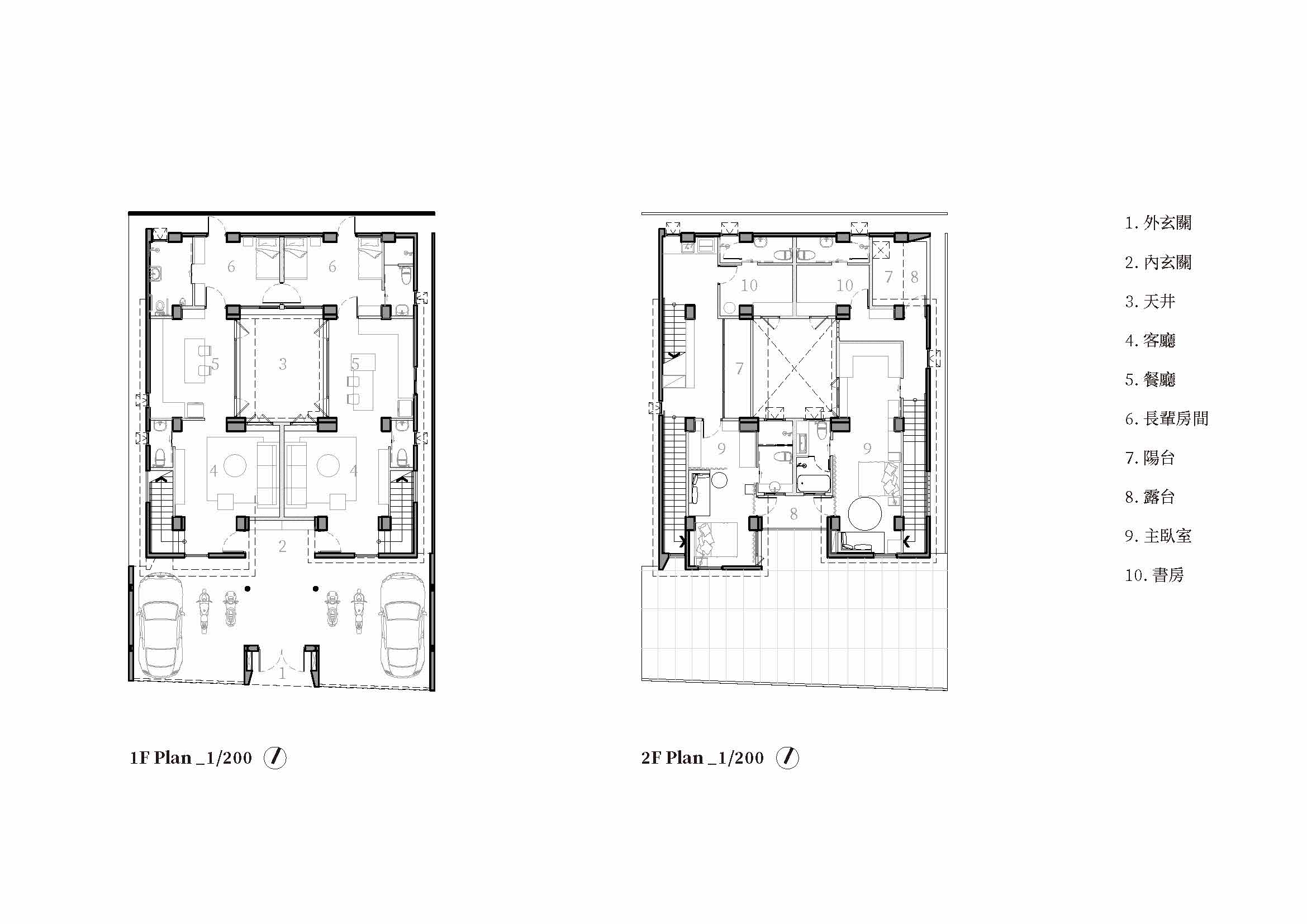
新化林宅 使用者為三代同堂,業主兩位二代成員工共同出資,故以雙拼的形式呈現。建築物的平面相互對稱,中央開設天井,作為三代間相互交流的核心。以整體白牆為主體,使建築物外觀簡單、清爽,且讓光影在牆面上的軌跡能容易被肉眼辨識。 Projects share: 分享到 Facebook(在新視窗中開啟) Facebook 喜歡 正在載入...