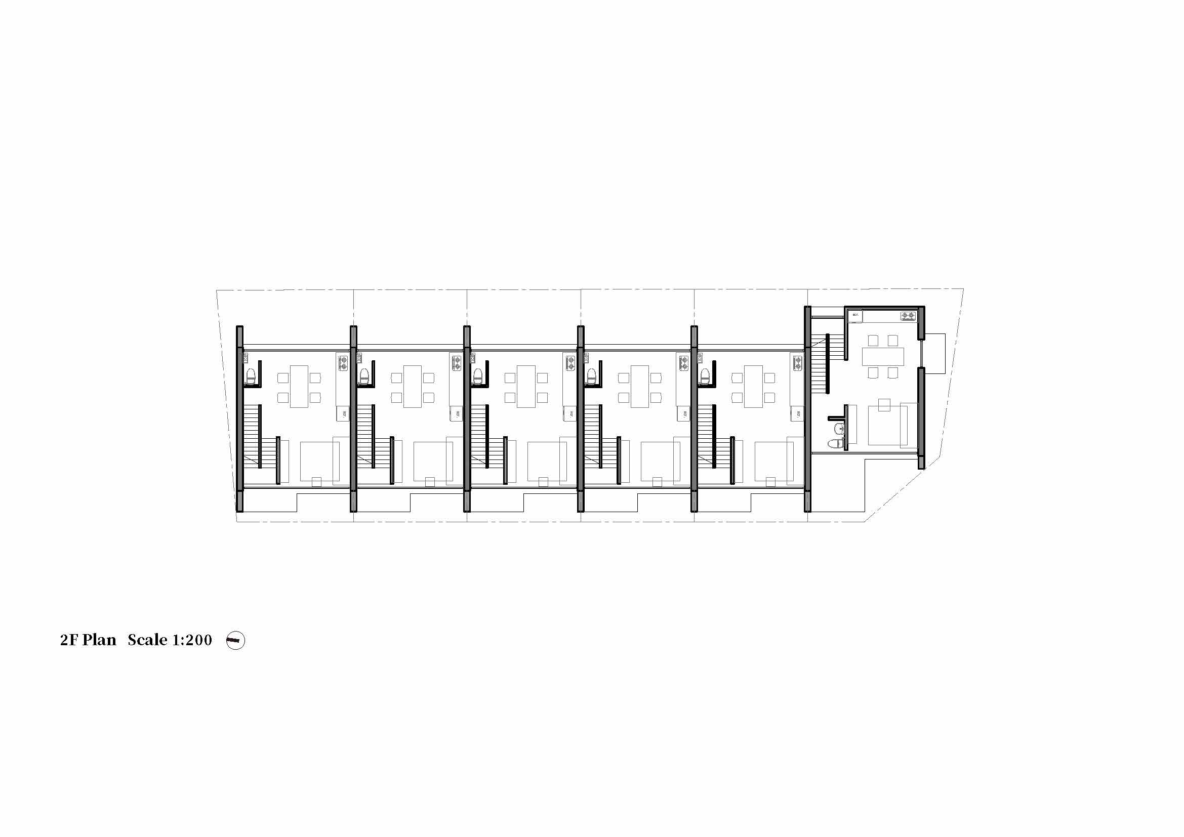
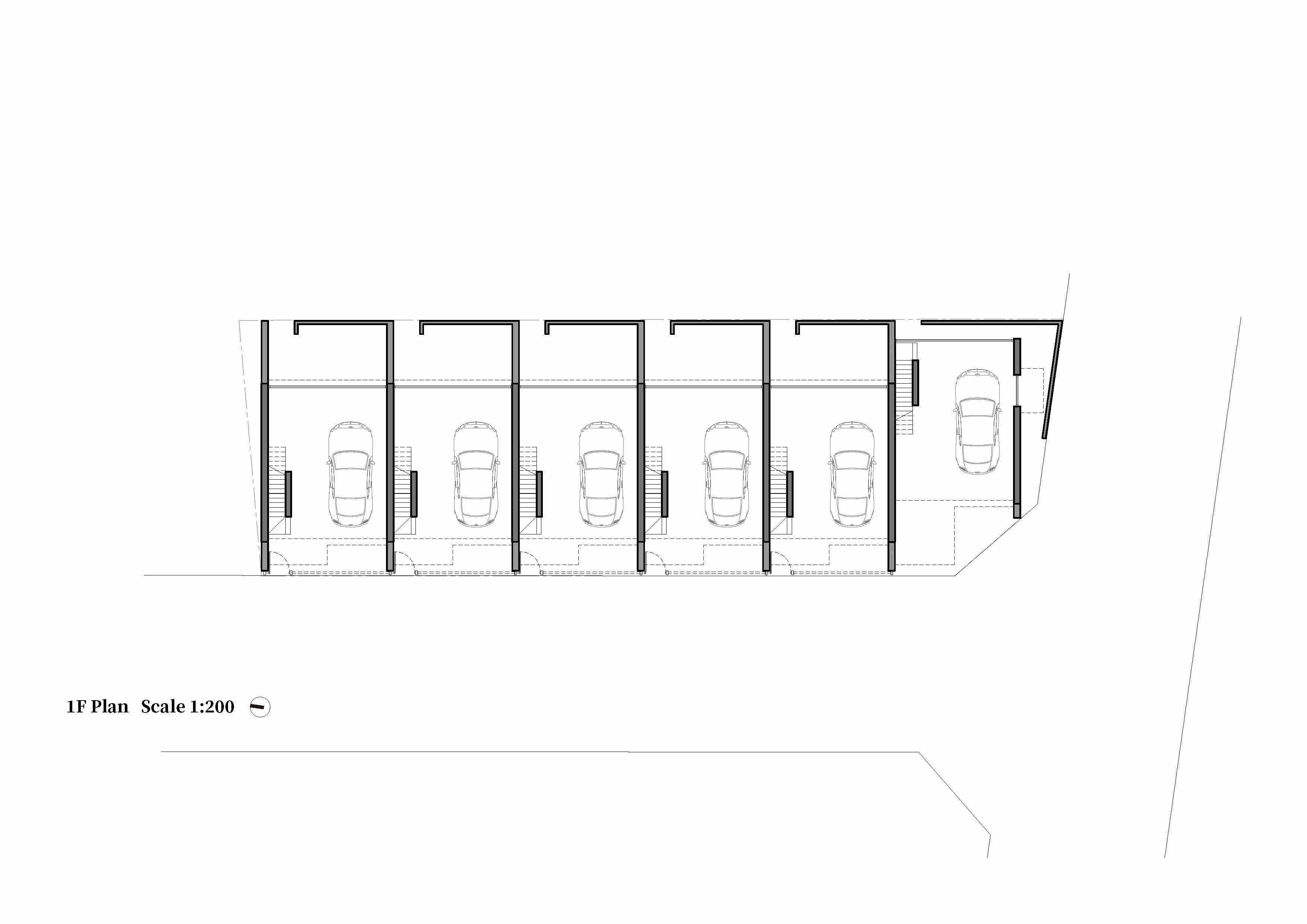
透天連棟住宅為台南常見之住宅形式,本案面臨公園,以大面落地窗的方式,最大限度引入日光與景觀。設計採用RC牆板系統,有別於柱樑系統更能加大建築物之淨高,簡化細節,提升空間品質。在動線設計上,樓梯的配置使一樓空間與樓上住宅得以拆分,各自獨立使用,讓出租與自用得同時發生,實現以租金減輕房貸。
透天連棟住宅為台南常見之住宅形式,本案面臨公園,以大面落地窗的方式,最大限度引入日光與景觀。設計採用RC牆板系統,有別於柱樑系統更能加大建築物之淨高,簡化細節,提升空間品質。在動線設計上,樓梯的配置使一樓空間與樓上住宅得以拆分,各自獨立使用,讓出租與自用得同時發生,實現以租金減輕房貸。